

















Bromley Heath Road, Bristol, Winterbourne, BS16 6JB
£500,000
Added on 10/02/2026
Property type
Detached House
Bedrooms
4
Bathrooms
2
About this property
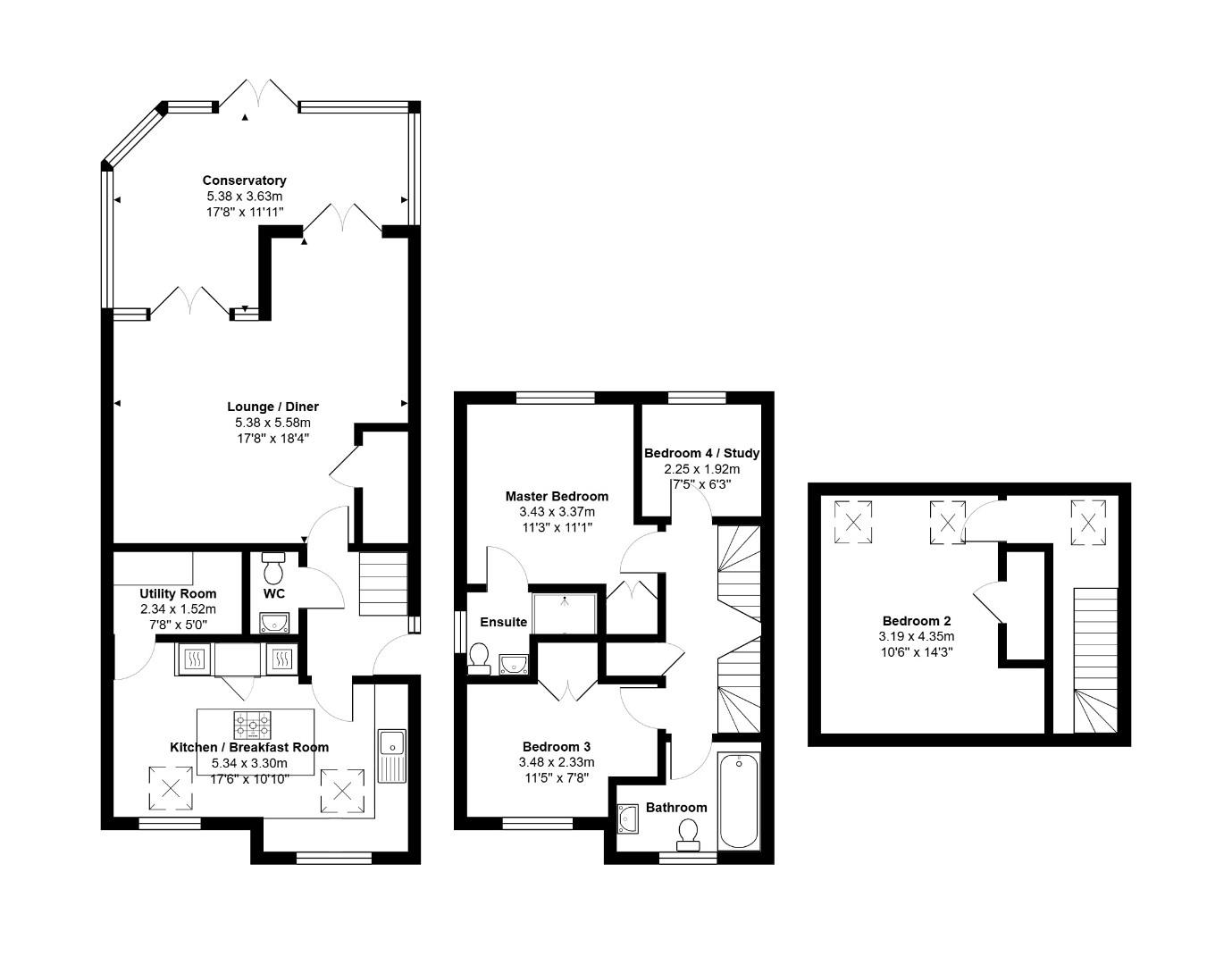
4 bedroom detached in Winterbourne, South Gloucestershire. Council Tax Band E.
Location
Mortgage calculator
These results are for a repayment mortgage and are intended as a guide only. Make sure you obtain accurate figures from your broker/lender before committing to any mortgage. Your home may be repossessed if you do not keep up repayments on a mortgage.
Stamp duty calculator
Effective rate: 2.50%
These estimates are provided as illustrative figures for guidance only. Rates shown are for individuals buying a freehold residential property in England or Northern Ireland. Different rates apply in Scotland and Wales. Different rates can apply if you are buying through a limited company. You should seek advice from a specialist financial provider.





